Timber Ridge Homes

MODA

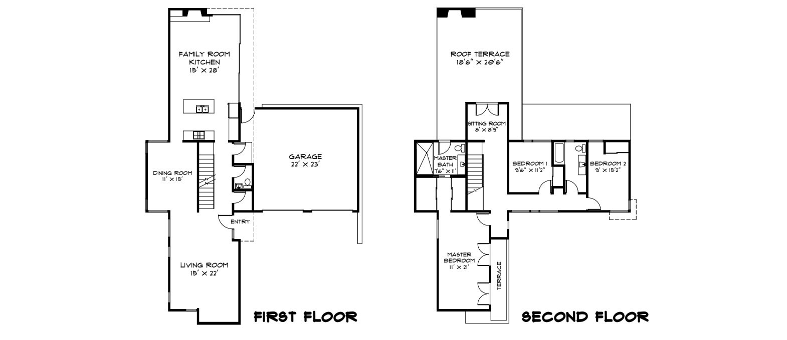
Area

Main Floor – 1194 sq ft

Upper Floor – 1090 sq ft

Lower Floor – 

Total Living Area - 2284 sq ft

Style - Modern

Width – 48 ft

Depth – 70 ft

Stories Above Ground – 1

Garage – 2 Car

An optional basement/walkout, Garage (attached, detached or semi-detached) can be added to every design

Floor Plan

Custom Timber Ridge Homes blueprint

Completed Projects

Request information for this design